Home
Projekte
Schulbau
Theodor-Heuss-Schule
Grundschule Fährstraße
Johannes-Brahms-Schule
Gugs im Quellental
Grundschule Waldenau
Helene-Lange-Schule
Pädagogisches Zentrum
Schulzentrum Nord
Förderzentrum Saarlandstrasse
Sporthallenkomplex Jahnhalle
Wohnungsbau
Mehrfamilienhäuser, Hamburg
Doppel- und Reihenhäuser, Hamburg
Wohn- und Geschäftshaus, Hamburg
Seniorenwohnungen, Hamburg
Mehrfamilienhaus, Plön
Einfamilienhäuser
Ferienwohnungen, Suxdorf
Verschiedenes
Ernst-Paasch-Halle
Heinrich Hertz Gewerbepark
Bürogebäude, Essen
Hotel, Bremerhaven
Containerbauwerke
Brandschutzkonzepte
Privater Bauherr
Kontakt
Vita
Philosophie
Materialien
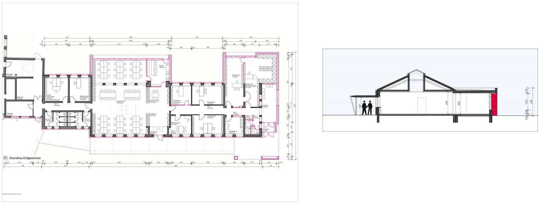
Gugs im Quellental
GuGs im Quellental
Umbau & Erweiterung Haus 1, Entwurf bis Realisierung
Fertigstellung 2019
Außenüberdachungen, Konzepte und Vorentwurfsplanung
2016
040 - 81 957 958
0174 - 25 9999 5
Impressum
Privacy & Datenschutz
Share by: