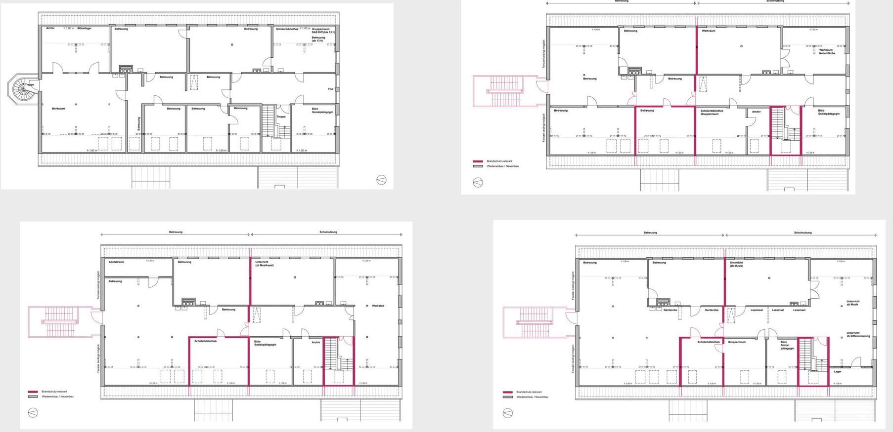
Grundschule Waldenau
Brandschutzkonzept
- Brandschutzertüchtigung des Schulgebäudes aus den 1930er Jahren
- Konzept, Entwurfs- und Genehmigungsplanung objektbezogener Brandschutz
- Objektbezogenes Brandschutzkonzept
- Planung, Generalplanung, Ausschreibung, Bauleitung
- Bauliche Realisierung 2022


Mensa
- Entwurf, BGF 255 qm

Mensa-Erweiterung
- Erweiterung einer Mensa in einem von Paul Seitz entworfenem Aula-Gebäude
- Entwurf, Entwurfsplanung

Außentreppe
- Entwurf bis Realisierung
- Fertigstellung 2021



